×
 
 

Kingsley, 5 Carolean Close, Great Boughton, Chester, CH3 5RJ

£565,000 Guide Price
  • Availability: Sold STC
  • Bedrooms: 3
  • Bathrooms: 2
  • Reception Rooms: 2
  • Tenure: Freehold
  • Make Enquiry
  • Floorplan
  • Floorplan
  • View Brochure

Share this property

Property Features

  • Semi-detached dormer bungalow
  • Three bedrooms (two downstairs bedrooms)
  • Within an exclusive new development of just seven homes
  • Open plan kitchen/living/dining room with Bi Folding doors opening to the garden
  • Desirable location within walking distance to Chester city centre
  • Private driveway and off road parking
  • EV Charging Point
  • 2 minute walk to the canal
  • Underfloor heating to the ground floor
  • More home to be released

Property Summary

A refined collection of beautifully crafted homes, Centurion Place delivers contemporary luxury in one of Chester's most desirable postcodes. This exclusive new development of just seven homes offers a harmonious blend of traditional craftsmanship and contemporary elegance.

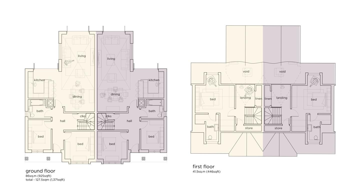
Plot 5 - Kingsley
A beautiful three bedroom semi-detached dormer bungalow. This spacious property comprises a large open plan kitchen/ living/ dining room with double-height vaulted ceiling with a striking full-height triangular feature window with Bi folding doors leading out to the patio and garden. There are two double bedrooms and a large bathroom downstairs. Upstairs there is the principal bedroom suite with large en-suite bathroom and a spacious landing office/reading area.

Full Details

Description
Each property has been thoughtfully designed to provide exceptional comfort, style, and practicality for modern living.

Set within a private enclave, Centurion Place delivers a sense of security and serenity, while remaining perfectly connected to the vibrant heart of Chester. From the moment you enter through the gates, you will appreciate the attention to detail that defines this development—every element has been considered to create homes of enduring quality and timeless appeal.

Each of the individual homes within Centurion Place has their own unique take on luxurious living. Each property boasts a fitted kitchen with quartz worktops. The landings, stairs and bedrooms are carpeted, with tiled floors in the bathrooms. The hallway and kitchen are fitted with luxury vinyl tiles, with underfloor heating to the ground floor rooms (excluding store rooms.) There is a private driveway and gardens to the front and rear as well as an electric vehicle charger.

Location
The development is perfectly positioned in the highly desirable suburb of Great Boughton, offering the ideal balance of convenience and tranquillity. Just 1.7 miles from Chester’s historic city centre, residents can enjoy easy access to its vibrant shopping streets, award-winning restaurants, and cultural attractions, while still benefiting from a peaceful residential setting.

Nestled close to the Chester Canal (0.2 miles), this development provides picturesque walking routes and cycling paths right on your doorstep. Everyday essentials are within easy reach, with Sainsburys supermarket just down the road, all Boughton local amenities can be reached in 0.5 miles, and a hotel and gym just 0.5 miles for fitness and leisure.

Boughton itself boasts a wide array of local shops and services, including a Post Office, butcher, hairdressers, coffee shops, pubs, medical centre, and a Co-op. Recent additions such as Waitrose and Aldi have further enhanced the convenience of the area. For leisure, Chester city centre offers an eclectic mix of shops, bars, restaurants, and cafés, alongside its rich historical heritage. The city is also home to one of the oldest racecourses in the world, hosting numerous racing events throughout the year.

For those who enjoy outdoor activities, the picturesque River Dee and The Groves promenade are within easy reach, providing an idyllic setting for riverside walks. Water enthusiasts will appreciate the nearby Chester Rowing Club.

Contact us for more information on all available homes within the development

Viewings
All viewings are by private appointment with Legat Owen

Contact Us

Fill out the form below and one of our team will contact you as soon as possible.

    © 2022 Legat Owen · All rights reserved · Registered in England and Wales No. 02185761
    Regulated by RICS · Privacy & Cookie Policy